Tennant Creek PAPI Install

Project overview
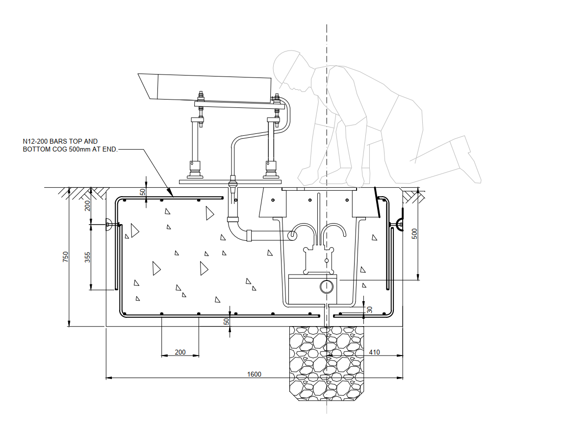
The Tennant Creek PAPI installation project objective was to design and construct airport infrastructure for new single-sided, double-ended Precision Approach Path Indicators (PAPI) for runway 07/25 at Tennant Creek Airport. This project was initiated due to outdated equipment concerns at Tennant Creek Airport and was granted funding for the replacement.
Our Advantage
The collaboration between Civiltech Solutions and Avionics played a crucial role in the successful design and construction of the Tennant Creek PAPI installation project. This collaboration allowed us to leverage our collective expertise and resources to develop a considered, cost-effective solution that met the specific needs of Tennant Creek Airport. By combining our technical knowledge and experience in the aviation industry, we were able to design and construct infrastructure that not only met regulatory requirements but also optimized efficiency and performance. This collaboration exemplifies our commitment to providing reliable and innovative solutions to our clients, while also fostering partnerships with industry leaders to deliver exceptional results.
Project Challenge
Challenges arose when securing knowledge about the operation and parts of the old Airfield ground lighting, and Visual Approach Slope Indicator System (AT-VASIS) system. Additionally, it was necessary to have a detailed understanding of the legacy control circuits to ensure that both systems worked in accordance with MoS 139 requirements.
Our Solution
Thorough Understanding: Our team conducted thorough legacy system research, reviewed and analyzed data to design a new system, and ensured quality installation and commissioning of the new PAPI system in accordance with MoS 139.
Project Outcome
The project was completed within the set budget, timeline and met the requirements of MoS139 in maintaining reliability of the replaced system. The new PAPI system and modifications have increased safety and improved airfield performance at Tennant Creek Airport. We are pleased to have successfully assisted Tennant Creek Airport in meeting its objectives while ensuring safe and reliable airport operations, and we remain committed to providing effective solutions to all our clients.
Rewards
Challenges arose when securing knowledge about the operation and parts of the old Airfield ground lighting, and Visual Approach Slope Indicator System (AT-VASIS) system. Additionally, it was necessary to have a detailed understanding of the legacy control circuits to ensure that both systems worked in accordance with MoS 139 requirements.
Location:
Tennant Creek , NT
Client:
Tennant Creek Airport - NT Airports
Role:
Project Manager
Date:
June 2019 to October 2019



